- 新聞資訊
- 西瑪新聞
- 行業資訊
西安西瑪電機在食品級輸送在西安西瑪電機,我們不斷致力于技術創新和材料改進,成
淺談西瑪電機近年的變革之品牌與形象的轉變,為西安西瑪電機帶來了市場的廣泛認可
深入解析西安泰富西瑪電機西瑪電機憑借其強大的技術研發能力、卓越的產品質量、完
西安西瑪YE5高效電機深西安西瑪電機生產的YE5高效三相異步電動機具有性能優
電控學院與西安泰富西瑪電電控學院與西安西瑪電機有限公司產學研聯合工作室的建立
西安西瑪電機與西北工業大西安西瑪電機有限公司作為一家傳統電機生產企業,對領域
泰富西瑪電機
配套電柜
電機配件
YKK系列高壓三相異步電機西安泰富西瑪YKK系列(H355-1000)高壓三相異步電機可作驅動
Y2系列緊湊型高壓異步電機西安泰富西瑪?Y2系列(H355-560)6KV緊湊型高壓異步電機可
YE3系列高效節能電機西安泰富西瑪電機生產的YE3系列高效節能電機達到了國標二級能效標準,
Z4系列直流電機西安泰富西瑪Z4系列直流電動機比Z2、Z3系列具有更大的優越性,它不
Z2系列小型直流電機西安泰富西瑪Z2系列電機為一般工業用小型直流電機,其電動機適用于恒功
ZTP型鐵路機車動車用直流輔助西安泰富西瑪ZTP系列西瑪電機應能滿足鐵路機車動車用直流輔助電機通用
YVFE3高效變頻三相異步電動機
產品簡介:西安泰富西瑪YVFE3系列超高效變頻調速三相異步電動機是在YE3系列電機基礎上派生的變頻電機,其效率達到IE3的超效率標準。在結構方面,其散熱片采用平行、垂直分布的形式,結構新穎,外形獨特,接線盒……

購買咨詢
技術服務
- 產品說明
- 技術參數
- 常見問題
西安泰富西瑪電機:YVFE3系列超高效變頻調速三相異步電動機
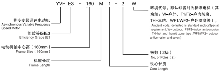
型號說明
以YVFE3-132S2-2為例:YVFE3—電機型號,YVF表示變頻調速,E3表示IE3超高高效率;132—中心高;S—機座長度代號;2—鐵芯長度代號;2—電機極數。
電機概述
西安泰富西瑪YVFE3系列超高效變頻調速三相異步電動機是在YE3系列電機基礎上派生的變頻電機,其效率達到IE3的超效率標準。在結構方面,其散熱片采用平行、垂直分布的形式,結構新穎,外形獨特,接線盒位于電機頂部,便于用戶接線。機座、端蓋等零部件設計合理,使整機噪音更低,震動更小,采用軸流通風機強迫通風,保證電機在低速恒轉矩長期運行時溫升不超過規定值,充分考慮變頻器電源供電對電機設計所產生的不良影響,保證電機在高頻時的過載能力,又能在低頻時保持恒轉矩輸出。
YVFE3-80-160采用全封閉免維護軸承,YVFE3-180-355前后軸承帶注油裝置,維護方便。
本系列超高效變頻調速三相異步電動機與變頻裝置構成的調速系統,與其它調速方式相比,節能效果顯著,調速性能好,調速范圍廣,具有噪音低、振動小、可與國內外各種變頻器配套的特點,可廣泛用于輕功、紡織、化工、冶金、機床等行業的恒轉矩,恒功率調速的場合及風機、水泵的節能調速,有助于實現調速系統的自動化控制。
本系列電動機的4極電機符合JB/T7118-2004的規定,其他級數的電機符合IEC34-1的規定,也符合GB755的規定。
電機結構
1、外殼防護等級為IP55,也可按用戶要求制成IP55。
2、冷卻方式為全封閉帶軸流通風機冷卻(IC416)。
3、根據用戶要求可帶各種高分辨率的傳感器(光電編嗎器、旋轉變壓器及測速發電機)。
4、根據用戶要求可帶電磁制動器械(通電、失電制動均可)、齒輪減速機等附件。
5、從軸伸端視之,電機接線盒位于機座右側,也可按用戶要求位于機座左側或頂部。
電機主要技術性能及技術參數
1、電機為連續工作制。
2、額定電壓為380V,額定頻率為50HZ。也可根據用戶要求確定額定點的電壓和頻率。
3、絕緣等級為F級。
4、H80-255中心高,5-50HZ為恒轉矩調速,H250-355中心高,3-50HZ為恒轉矩調速,50-100HZ為恒功率調速。也可根據用戶要求確定高頻范圍。
5、過載能力強。
6、低速性能好。
7、280及以下機座號為Y接法,315 355為△接法。
變頻電機使用條件
1、海拔不超過1000m。
2、環境空氣溫度隨季節而變化,但不超過40℃,最低不超過-15℃。
3、最濕月平均相對濕度為90%,同時該月月平均最低溫度不高于25℃。
西安泰富西瑪變頻電機訂購須知
1、訂貨時請注明電動機型號、功率、調速、電壓、頻率、噪聲及安裝型式等。若未注明噪聲等級,均按2級供貨。
2、如有特殊要求,請在合同中注明,并事先與制造廠聯系。
以上關于YVFE3系列超高效變頻調速三相異步電動機的資料由西安西瑪電機技術部提供,網絡部整理發布,歡迎廣大新老客戶垂詢選購!
轉載請說明來自西安泰富西瑪電機(西瑪電機集團)官方網站:http://m.hgbaike.com/dianji/dianji_bianpin412.html
型號說明
以YVFE3-132S2-2為例:YVFE3—電機型號,YVF表示變頻調速,E3表示IE3超高高效率;132—中心高;S—機座長度代號;2—鐵芯長度代號;2—電機極數。
電機概述
西安泰富西瑪YVFE3系列超高效變頻調速三相異步電動機是在YE3系列電機基礎上派生的變頻電機,其效率達到IE3的超效率標準。在結構方面,其散熱片采用平行、垂直分布的形式,結構新穎,外形獨特,接線盒位于電機頂部,便于用戶接線。機座、端蓋等零部件設計合理,使整機噪音更低,震動更小,采用軸流通風機強迫通風,保證電機在低速恒轉矩長期運行時溫升不超過規定值,充分考慮變頻器電源供電對電機設計所產生的不良影響,保證電機在高頻時的過載能力,又能在低頻時保持恒轉矩輸出。
YVFE3-80-160采用全封閉免維護軸承,YVFE3-180-355前后軸承帶注油裝置,維護方便。
本系列超高效變頻調速三相異步電動機與變頻裝置構成的調速系統,與其它調速方式相比,節能效果顯著,調速性能好,調速范圍廣,具有噪音低、振動小、可與國內外各種變頻器配套的特點,可廣泛用于輕功、紡織、化工、冶金、機床等行業的恒轉矩,恒功率調速的場合及風機、水泵的節能調速,有助于實現調速系統的自動化控制。
本系列電動機的4極電機符合JB/T7118-2004的規定,其他級數的電機符合IEC34-1的規定,也符合GB755的規定。
電機結構
1、外殼防護等級為IP55,也可按用戶要求制成IP55。
2、冷卻方式為全封閉帶軸流通風機冷卻(IC416)。
3、根據用戶要求可帶各種高分辨率的傳感器(光電編嗎器、旋轉變壓器及測速發電機)。
4、根據用戶要求可帶電磁制動器械(通電、失電制動均可)、齒輪減速機等附件。
5、從軸伸端視之,電機接線盒位于機座右側,也可按用戶要求位于機座左側或頂部。
電機主要技術性能及技術參數
1、電機為連續工作制。
2、額定電壓為380V,額定頻率為50HZ。也可根據用戶要求確定額定點的電壓和頻率。
3、絕緣等級為F級。
4、H80-255中心高,5-50HZ為恒轉矩調速,H250-355中心高,3-50HZ為恒轉矩調速,50-100HZ為恒功率調速。也可根據用戶要求確定高頻范圍。
5、過載能力強。
6、低速性能好。
7、280及以下機座號為Y接法,315 355為△接法。
變頻電機使用條件
1、海拔不超過1000m。
2、環境空氣溫度隨季節而變化,但不超過40℃,最低不超過-15℃。
3、最濕月平均相對濕度為90%,同時該月月平均最低溫度不高于25℃。
西安泰富西瑪變頻電機訂購須知
1、訂貨時請注明電動機型號、功率、調速、電壓、頻率、噪聲及安裝型式等。若未注明噪聲等級,均按2級供貨。
2、如有特殊要求,請在合同中注明,并事先與制造廠聯系。
以上關于YVFE3系列超高效變頻調速三相異步電動機的資料由西安西瑪電機技術部提供,網絡部整理發布,歡迎廣大新老客戶垂詢選購!
轉載請說明來自西安泰富西瑪電機(西瑪電機集團)官方網站:http://m.hgbaike.com/dianji/dianji_bianpin412.html
西安泰富西瑪電機(西安西瑪電機集團)慎重承諾:西安西瑪電機所出售的電機均為正宗泰富西瑪牌電機,開17%增值稅發票,發票均以快遞形式寄出,不隨產品運送,以免丟失。用戶可憑電機購買合同及西瑪電機產品發票,可享受一年期三包售后服務。
西安西瑪電機為您提供具有競爭力的電機價格和良好的售后服務政策,請您放心購買!
聲明:我廠出售的所有電機產品均開17%增值稅發票。如有西瑪電機的經銷商以不開發票打折優惠、免運費、贈送電機配件、發票用完等理由拒絕向買方提供發票的,請廣大新老用戶謹慎購買。



西安西瑪電機緊跟電機行業的發展趨勢,了解電機市場動態,制定出西瑪電機的發展規劃,穩步前行。
隨著國家節能減排的積極推行,新能源汽車產業快速增長及高效節能電機補貼政策的逐步落實,高效節能電機業將迎來爆發式的增長。
西瑪電機售后維修業務有:軸料加工件、鋼板切割、焊接件、高壓機殼、冷卻器、上下罩、高、低壓交直流電機;國內、外電機的修理、維護和試驗。
質量為本,用戶至上”是我公司一貫宗旨。“誠心、貼心、傾心、西瑪永遠用心”的“三心”服務理念。
西安泰富西瑪電機(西安西瑪電機集團股份有限公司)是國內九大的電機供應商之一,產品包括各種高低壓、交直流、高壓同步電機等。


















